Končar Orange Fabric, Zagreb – dogradnja hale 1 – ispitni visokonaponski laboratorij

Investitor
Končar – D&ST d.d.
Autor
Ivana Knez, dipl. ing. arh.
Glavni projektant
Ana Alar, dipl. ing. arh.
Projektanti

Ivana Knez, dipl. ing. arh.
Željka Hitrec, dipl. ing. el.

Projektanti suradnici

Ana Novak, mag. ing. mech.

Lokacija
Zagreb
Godina projektiranja/izvođenja
2011 - 2013
Površina

4650 m²

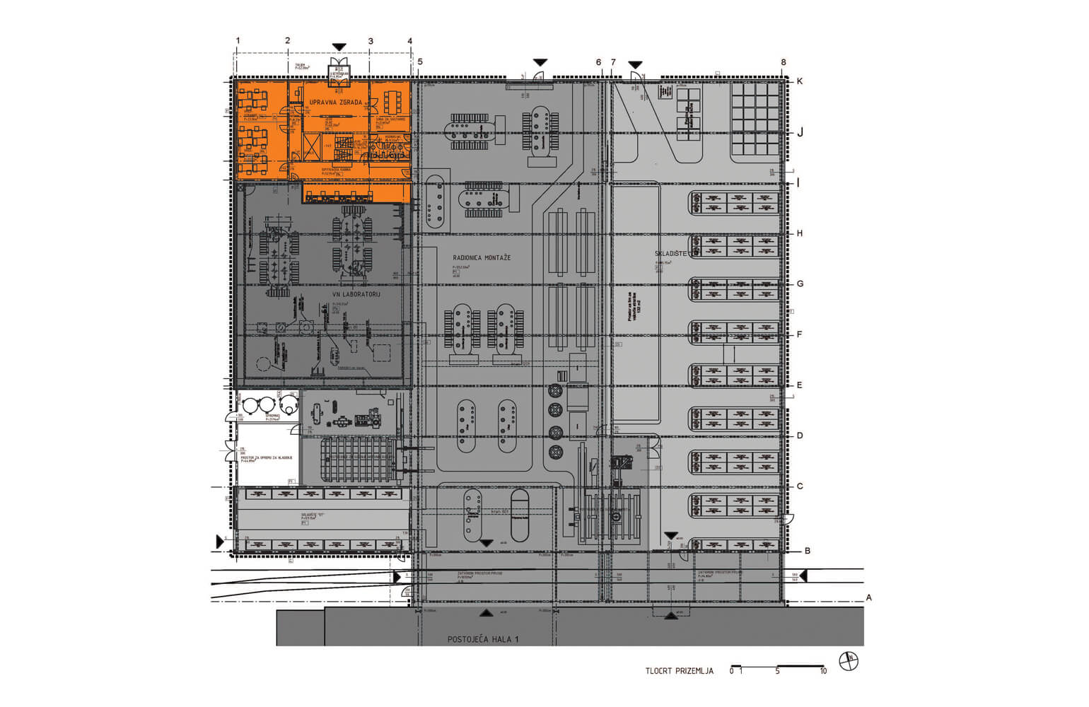
Kompaktni tlocrt dogradnje iz kojega se izdižu volumeni različitih visina i namjena uvjetovani su tehnološkim procesom proizvodnje transformatora: visokonaponski ispitni laboratorij, pogon montaže, regalno skladište, upravna zgrada i projektni ured. Fasadna opna promatrana u kretanju stvara optički dinamičnu igru čime je ostvaren novi prostorno-vizualni identitet i artikulacija neposrednoga industrijskog okruženja.
Za KONZALT ING d.o.o.