Cjelovita obnova Agronomskog fakulteta

Investitor
Sveučilište u Zagrebu - Agronomski fakultet
Glavni projektant
Ana Alar, dipl.ing.arh.
Projektanti

Emil Rohlik, mag.ing.arch.
Željka Hitrec, dipl.ing.el.
Ana Novak, mag.ing.mech.
Nika Nevečerel, dipl.ing.stroj.

Projektanti suradnici

Ivana Knez, doc.dr.art., dipl.ing.arh.
Nikola Mustapić, dipl.ing.arh.
Martina Stjepandić, mag.ing.arch.
Petar Vrpoljac, univ.bacc.ing.mech.

Lokacija
Zagreb
Godina projektiranja/izvođenja
2021 - 2024
Površina

Pav. I: 2 229,19m²
Pav. II: 2 761,17 m²
Pav. III: 2 883,90 m²

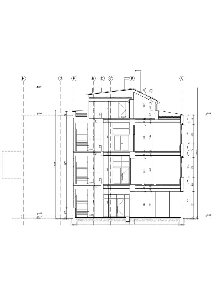
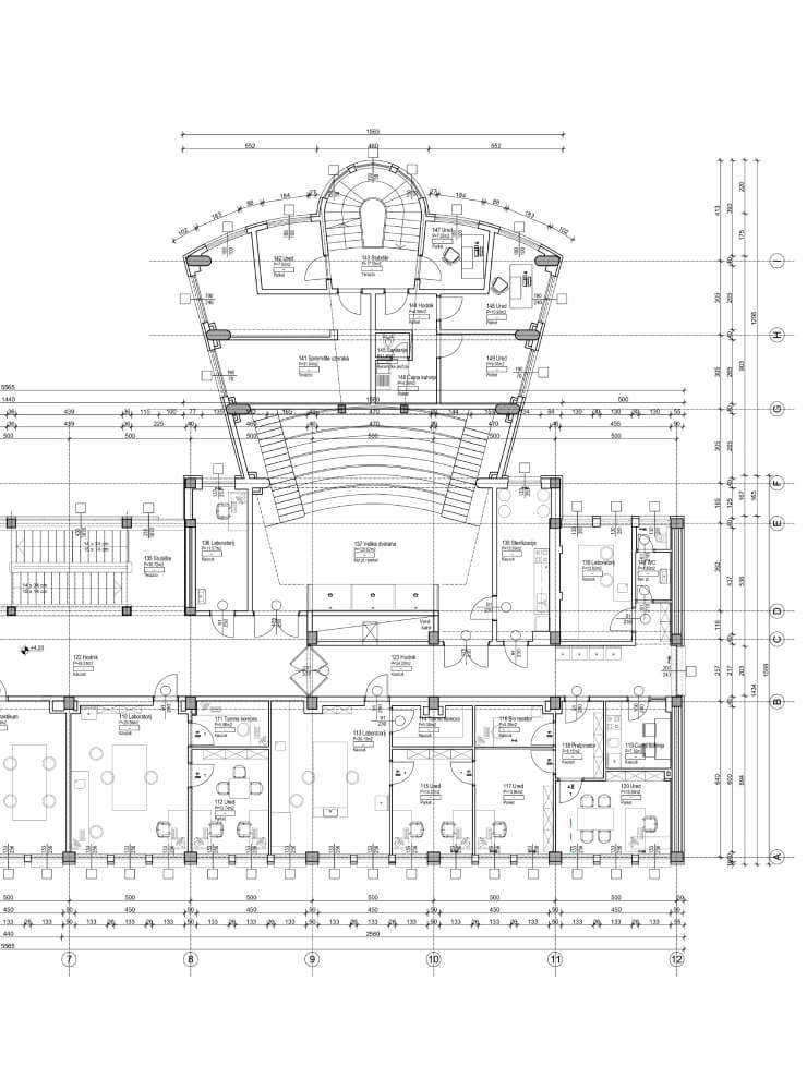
Kompleks Agronomskog fakulteta Sveučilišta u Zagrebu smješten je unutar zaštićenog prostora Parka Maksimir, a predmet cjelovite obnove su Paviljoni I–III, izgrađeni tijekom 1930-ih godina. Projektirani prema tadašnjim tehničkim i graditeljskim pravilima, bez seizmičkih standarda, paviljoni su u potresima 2020. godine pretrpjeli manja oštećenja. Pokrenuta je cjelovita obnova koja obuhvaća ojačanje nosive konstrukcije, zamjenu instalacija i potpunu adaptaciju prostora, kako bi se osigurali uvjeti za suvremeni znanstveni, nastavni i administrativni rad.
Fotografija: Bosnić+Dorotić