Konstruktivna obnova Knjižnice Hrvatske akademije znanosti i umjetnosti

Investitor
Hrvatska Akademija znanosti i umjetnosti
Glavni projektant
Ana Alar, dipl.ing.arh.
Projektanti

Ivana Knez, doc.dr.art., dipl.ing.arh.

Projektanti suradnici

Emil Rohlik, mag.ing.arch.
Sanja Bajer Dunatov, ing.arh.

Lokacija
Zagreb
Godina projektiranja/izvođenja
2022 - 2024
Površina

4604.36 m²

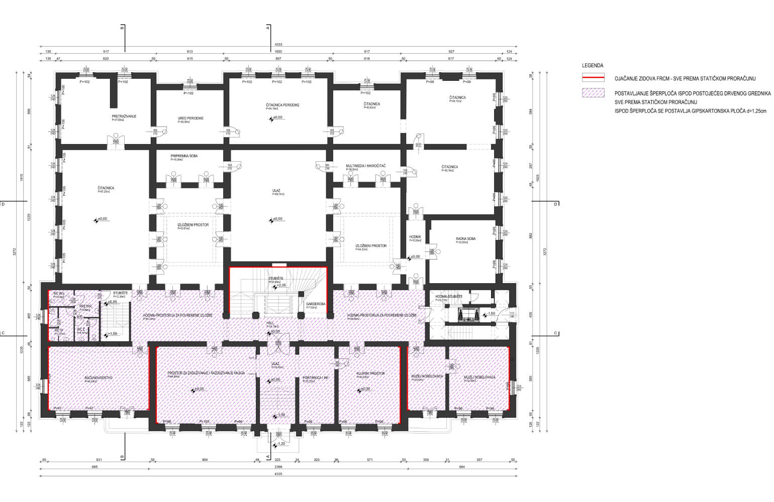
Zgrada Kemijskog laboratorija izvorno je podignuta 1884. godine prema projektu Hermana Bolléa. Zgrada laboratorija 2009. godine prenamijenjena je i preoblikovana u Knjižnicu Hrvatske akademije znanosti i umjetnosti prema projektu akademika Miroslava Begovića, Velimira Neidhardta i Ante Vulina. Cjelovita obnova zgrade uslijed potresa iz 2020. godine obuhvaća ojačanje nosive konstrukcije te sanaciju pukotina na određenim mjestima, u svrhu ispunjavanja zahtjeva suvremenog multimedijskog i knjižničnog centra.