Intersnack proizvodni objekt

Investitor
Intersnack Adria d.o.o.
Glavni projektant
Ana Alar, dipl.ing.arh.
Projektanti

Emil Rohlik, mag.ing.arch.
Željka Hitrec, dipl.ing.el.
Nika Nevečerel, dipl.ing.stroj.

Projektanti suradnici

Ivana Knez, doc.dr.art., dipl.ing.arh.
Ana Pezer, dipl.ing.arh.
Ana Novak, mag.ing.mech.
Petar Vrpoljac, univ.bacc.ing.mech.

Lokacija
Hercegovac
Godina projektiranja/izvođenja
2022
Površina

3.680 m²

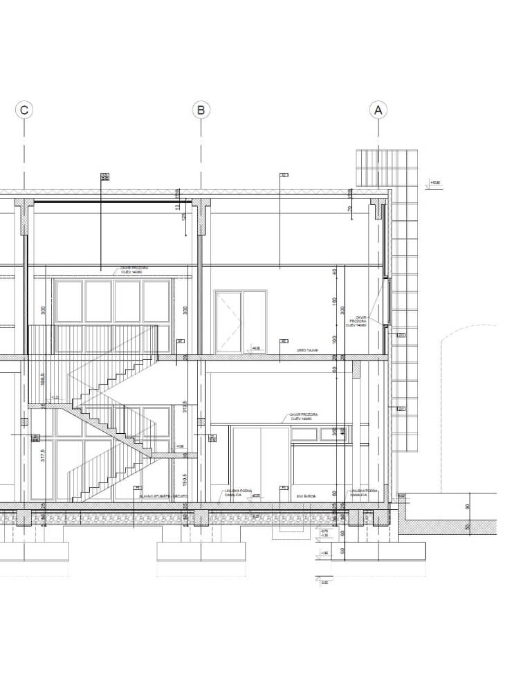
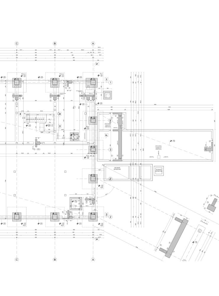
Projektom je predviđena izgradnja objekta za smještaj proizvodnih linija za proizvodnju snacka unutar postojećeg kompleksa tvornice, s ciljem povećanja proizvodnje. Osim proizvodnog dijela, u objektu će biti smješten i administrativni dio s uredskim prostorima te zajednički sadržaji. U sklopu proizvodnog objekta planira se izgradnja nadstrešnice koja će povezivati objekt s postojećim skladištem krumpira, otvorenim tankvanama sa spremnicima za jestivo ulje i novom trafostanicom.