Rekonstrukcija zgrade u Nazorovoj 53

Investitor
Hrvatski zavod za javno zdravstvo
Glavni projektant
Ana Alar, dipl.ing.arh.
Projektanti

Emil Rohlik, mag.ing.arch.
Željka Hitrec, dipl.ing.el.

Projektanti suradnici

Ana Pezer, dipl.ing.arh.
Lora Pleskina, univ.bacc.ing.arch.
Kristijan Čuljak, mag.ing.mech.
Marija Pavlić, mag.ing.el.

Lokacija
Zagreb
Godina projektiranja/izvođenja
2023 - 2025
Površina

2975,50 m²

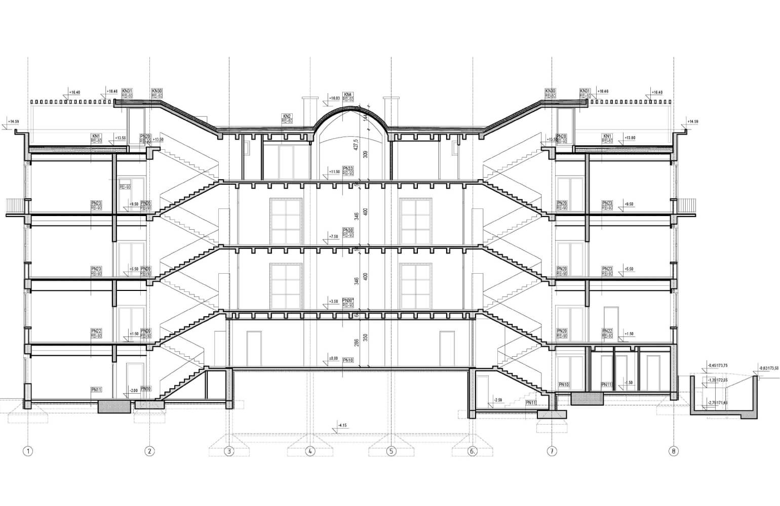
Zgrada se nalazi u Ulici Vladimira Nazora 53 u Zagrebu, a projektirao ju je arhitekt Stjepan Planić 1941. godine. Iako nije zaštićena kao pojedinačno kulturno dobro, smještena je unutar zaštićene povijesne urbane cjeline grada. Nakon višegodišnjeg neodržavanja i potresa 2020. godine, zgrada se rekonstruira kao višenamjenski objekt Hrvatskog zavoda za javno zdravstvo. Potrebna je rekonstrukcija koja obuhvaća sanaciju nosive konstrukcije, obnovu pročelja, krovišta i stubišta, obnovu svih instalacija te prilagodbu unutrašnjosti suvremenim funkcionalnim zahtjevima.