Projekt cjelovite obnove stambeno poslovne zgrade "Kukovićeva kuća"

Investitor
Ministarstvo prostornog uređenja, graditeljstva i državne imovine
Glavni projektant
Ana Alar, dipl.ing.arh.
Projektanti

Ana Alar, dipl.ing.arh.
Željka Hitrec, dipl.ing.el.

Projektanti suradnici

Ana Pezer, dipl.ing.arh.
Lora Pleskina, univ.mag.ing.arch.
Emil Rohlik, mag.ing.arch.
Martina Lulić Devčić, dipl.ing.arh.
Vesna Mravinac, dipl.ing.arh.
Goran Zvonar, mag.ing.el.
Marija Pavlić, mag.ing.el.

Lokacija
Zagreb
Godina projektiranja/izvođenja
2024
Površina

16.538 m²

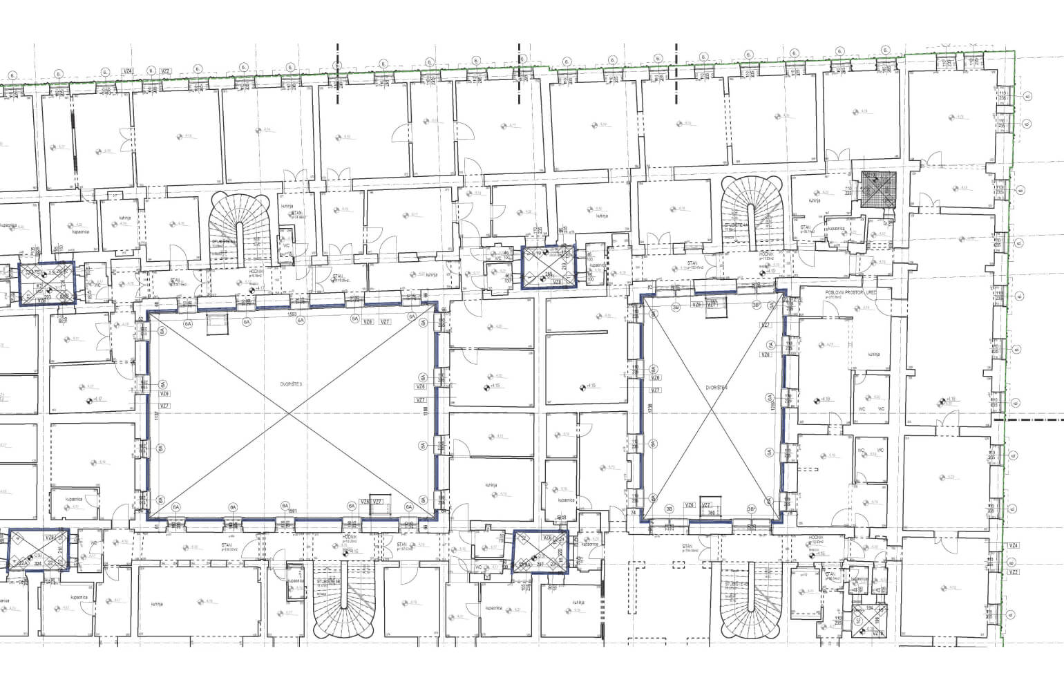
Samostojeća zgrada s četiri atrijska dvorišta, izgrađena 1872.–74. prema projektu Ivana Plochbergera u talijanskom neorenesansnom stilu, dio je donjogradskog bloka Zagreba i zaštićeno je kulturno dobro. U sklopu projekta cjelovite obnove predviđeno je ojačanje nosive konstrukcije zgrade, obnova pročelja, konstruktivna sanacija postojeće građe, sprječavanje prodora kapilarne vlage i procijedne vode, poboljšanje temeljnog zahtjeva za energetsku učinkovitost te modernizacija postojećih instalacija.