Priključni plinovod Žutica, Naftna bušotina Cabuna 3, Bušotinski radni prostor Gola-10

Investitor
INA – Industrija nafte d.d.
Glavni projektant
Nika Nevečerel, dipl. ing. stroj.Ljubomir Radojčić, ing. stroj.
Projektanti

Nika Nevečerel, dipl. ing. stroj.
Ana Novak, mag. ing. mech.
Željka Hitrec, dipl. ing. el.

Lokacija
Zagreb, Virovitica-Podravina, Križevci-Koprivnica
Godina projektiranja/izvođenja
2014 - 2017
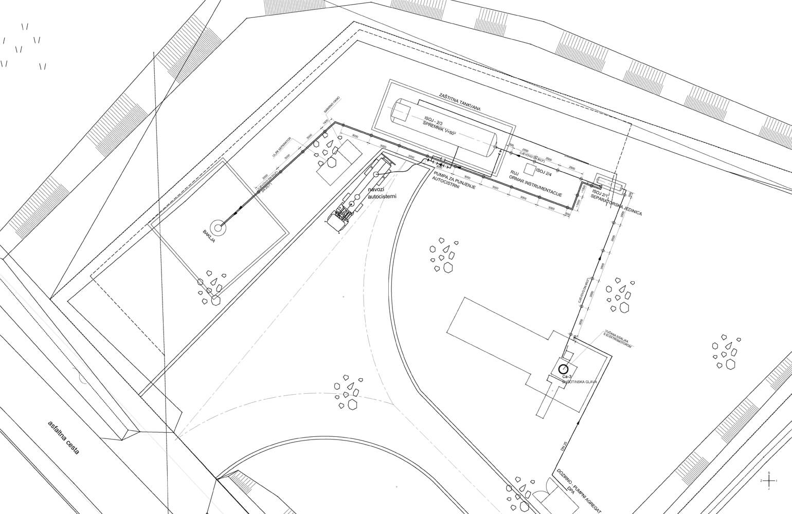
Za rudarske objekte i postrojenja izrađeni su strojarsko-tehnološki, elektrotehnički projekti i projekti mjerenja i regulacije. Gola-10 sastoji se od bušotinskoga radnog prostora, elektroenergetskoga i signalnog kabela. Priključni plinovod bušotine Žutica 76 služi za transport plina od bušotine Žu-76 do spoja na plinovod Žutica 21 u dužini od 968,63 m. U bušotinskome radnom polju Cabuna 3 u potpunosti je definiran sabirno-otpremni sustav za korištenje bušotine kapaciteta 11 m3/dan nafte.
Za KONZALT ING d.o.o.